免費業主放盤
/
業主刪除樓盤
/
按揭計算
ENG
一手豪宅成交
平面圖
維港灣畔
地區:
啟德
地址:
承豐道18號
發展商:
中國海外,九龍倉,恒基兆業,嘉華國際
入伙期:
地契年期:
2069 (尚餘43年)
會所設施:
周圍環境:
座/層/單位:
維港灣畔 第01A座 (2-35樓) (A-J室)
維港灣畔 第02A座 (2-35樓) (A-J室)
維港灣畔 第01B座 (2-35樓) (A-F室)
維港灣畔 第02B座 (2-35樓) (A-J室)
維港灣畔 第01C座 (2-35樓) (A-F室)
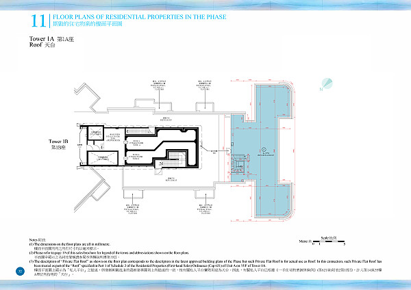
維港灣畔 第01A座 平面圖
2樓
2樓A及B單位 (現狀樓面)
3, 5-12, 15-23, 25-33樓
17樓A及B單位 (現狀樓面)
3, 5-12, 15-16, 18-23, 25-33樓A及B單位 (現狀樓面)
35樓
天台
返回
主頁
|
豪宅 租/售
|
豪宅成交
|
一手豪宅
|
豪宅市場消息
|
代理登入
|
刊登廣告
|
免費業主放盤
|
業主刪除樓盤
|
按揭計算
相關網站 :
科一物業資訊
|
宅谷地產資訊網
|
香港格價網 $ 樓盤
|
搵樓18
Copyright © 1995 - 2026 香港豪宅網 保留一切權利.
MLS.hk O/B Multiple Listing System Ltd.