免費業主放盤
/
業主刪除樓盤
/
按揭計算
ENG
一手豪宅成交
平面圖
雙玥
地區:
屯門
地址:
樂翠街9-11號
發展商:
HT CAPITAL
入伙期:
地契年期:
2064 (尚餘38年)
會所設施:
周圍環境:
座/層/單位:
雙玥 (-樓) (1-2室)
雙玥 平面圖
1號洋房 - 地庫及地下
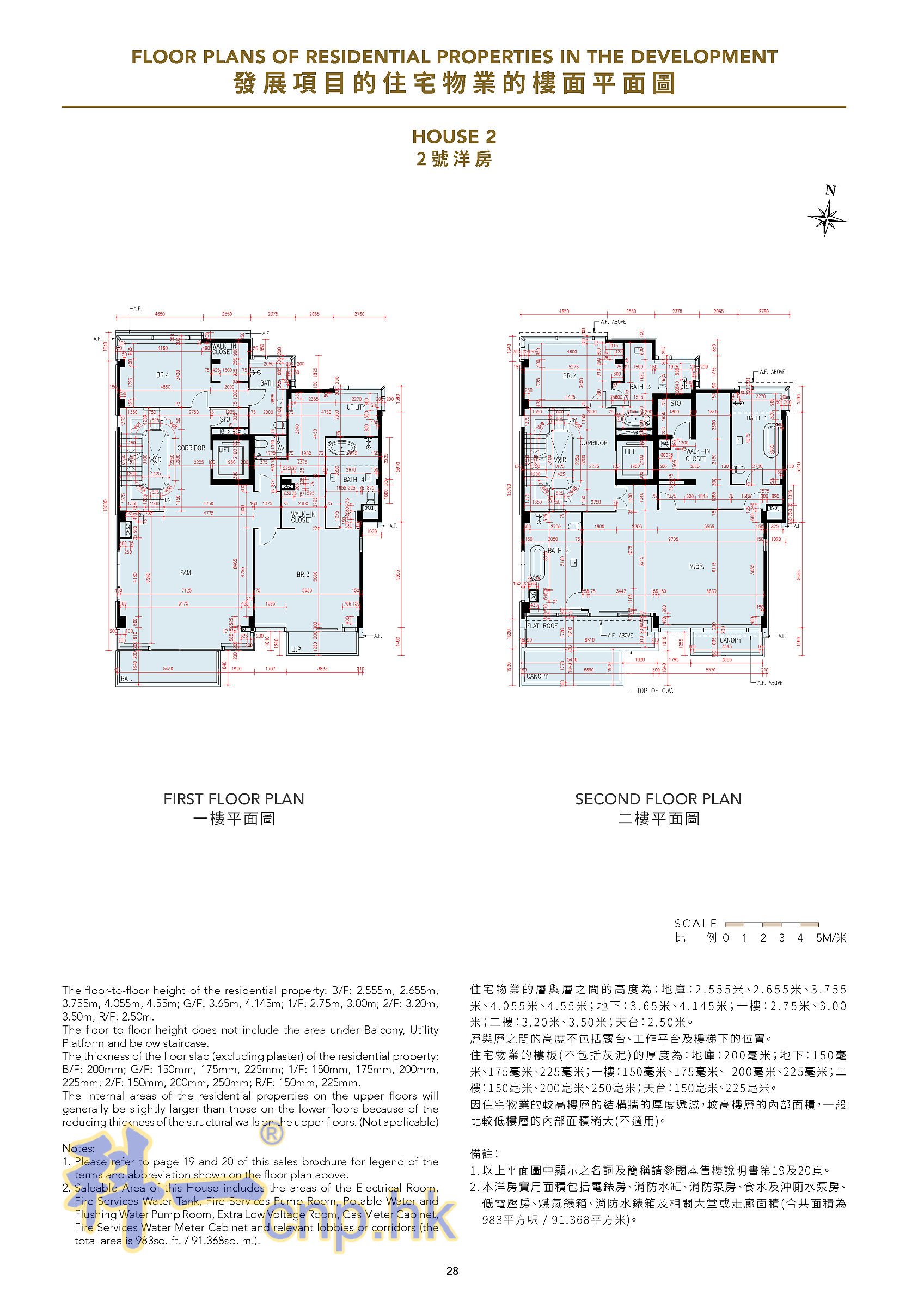
1號洋房 - 1-2樓
1號洋房 - 天台
1號洋房 - 地下 (現狀)
1號洋房 - 1樓 (現狀)
1號洋房 - 2樓 (現狀)
2號洋房 - 地庫及地下
2號洋房 - 1-2樓
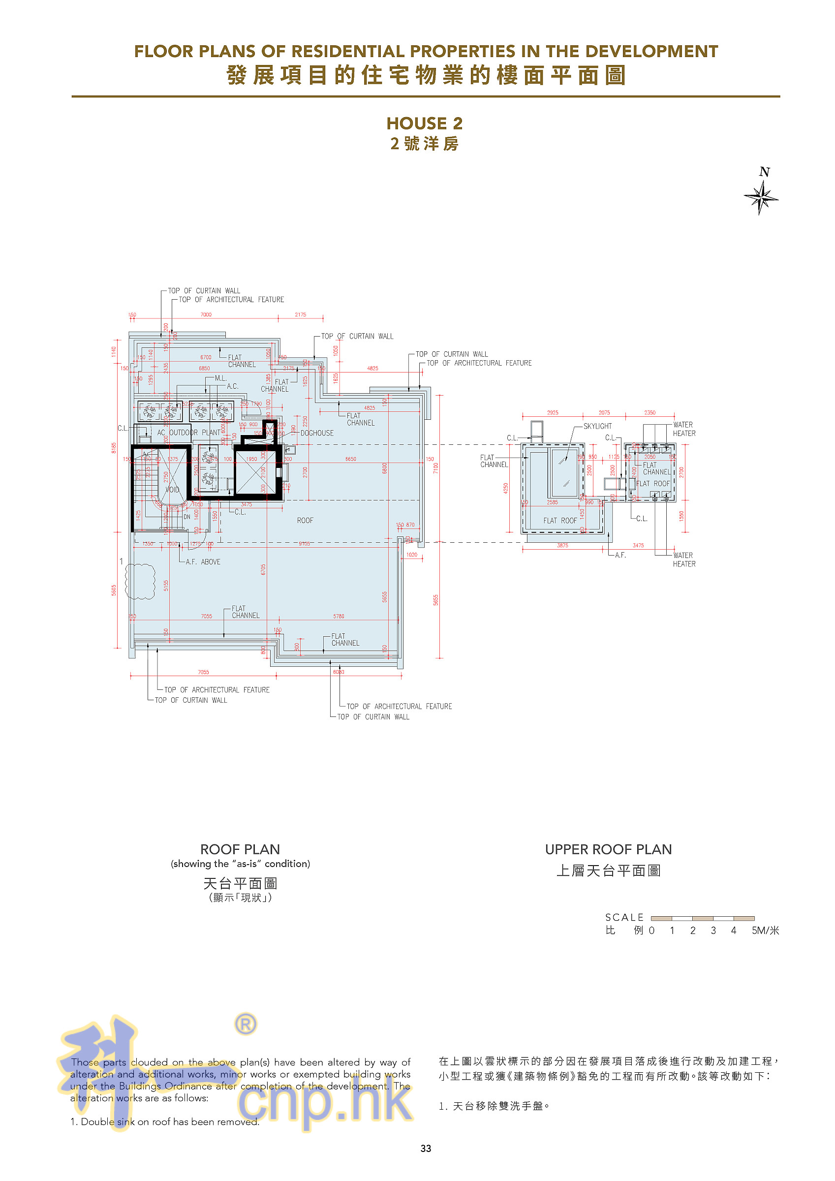
2號洋房 - 天台
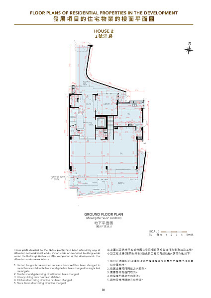
2號洋房 - 地下 (現狀)
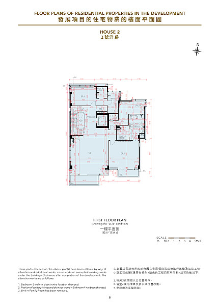
2號洋房 - 1樓 (現狀)
2號洋房 - 2樓 (現狀)
2號洋房 - 天台 (現狀)
返回
主頁
|
豪宅 租/售
|
豪宅成交
|
一手豪宅
|
豪宅市場消息
|
代理登入
|
刊登廣告
|
免費業主放盤
|
業主刪除樓盤
|
按揭計算
相關網站 :
科一物業資訊
|
宅谷地產資訊網
|
香港格價網 $ 樓盤
|
搵樓18
Copyright © 1995 - 2026 香港豪宅網 保留一切權利.
MLS.hk O/B Multiple Listing System Ltd.