免費業主放盤
/
業主刪除樓盤
/
按揭計算
ENG
一手豪宅成交
平面圖
駿嶺薈
地區:
沙田
地址:
麗坪路38號
發展商:
創金發展有限公司
(建滔集團.金寶投資等之附屬公司)
入伙期:
2019/11/29
地契年期:
2063 (尚餘38年)
會所設施:
游泳池...
周圍環境:
近香港中文大學...
座/層/單位:
駿嶺薈 洋房 (-樓) (1-73室)
駿嶺薈 第02座 (1-15樓) (C-D室)
駿嶺薈 第01座 (1-15樓) (A-B室)
駿嶺薈 洋房 平面圖
洋房1號
洋房2號
洋房3號
洋房5號
洋房6號
洋房7號
洋房8號
洋房9號
洋房10號
洋房11及12號 - 地庫及地下 (花園)
洋房11及12號 - 地下, 1-2樓及天台
洋房15、16及17號 - 地庫
洋房15、16及17號 - 地下 (花園)
洋房15、16及17號 - 地下, 1-2樓及天台
洋房18號
洋房19號
洋房20號
洋房21及22號 - 地庫及地下 (花園)
洋房21及22號 - 地下, 1-2樓及天台
洋房23號
洋房25、26及27號 - 地庫
洋房25、26及27號 - 地下 (花園)
洋房25號 - 地下, 1-2樓及天台
洋房26號
洋房27號
洋房28號
洋房29號
洋房30及31號 - 地庫及地下 (花園)
洋房30及31號 - 地下, 1-2樓及天台
洋房32號
洋房33號
洋房35、36、37及38號 - 地庫
洋房35、36、37及38號 - 地下 (花園)
洋房35、36、37及38號 - 地下, 1樓及天台
洋房39號 - 地庫及地下 (花園)
洋房39號 - 地下及1樓
洋房39號 - 2樓及天台
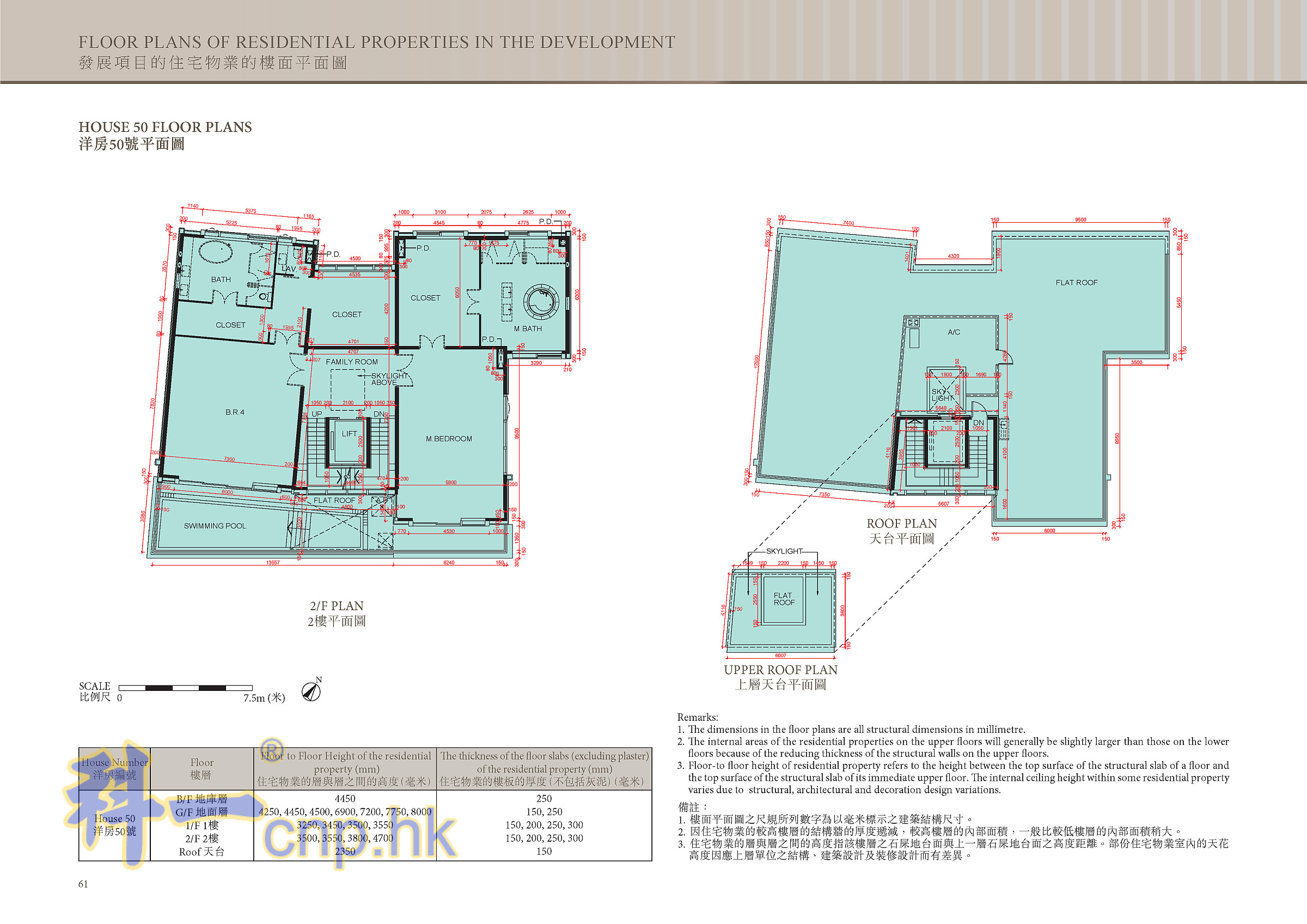
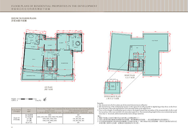
洋房50號 - 地庫及地下 (花園)
洋房50號 - 地下及1樓
洋房50號 - 2樓及天台
洋房51號 - 地庫、地下及1樓
洋房51號 - 1-2樓及天台
洋房52號 - 地庫及地下
洋房52號 - 1-2樓及天台
洋房53號 - 地庫及地下
洋房53號 - 1-2樓及天台
洋房55號 - 地庫及地下
洋房55號 - 1-2樓及天台
洋房56、57、58及59號 - 地庫
洋房56、57、58及59號 - 地下 (花園)
洋房56號 - 地下, 1-2樓及天台
洋房57號 - 地下, 1-2樓及天台
洋房58及59號 - 地下, 1-2樓及天台
洋房60及61號 - 地下 (花園)
洋房60及61號 - 地下, 1-2樓及天台
洋房62號 - 地庫及地下 (花園)
洋房62號 - 地下及1樓
洋房62號 - 2樓及天台
洋房63號 - 地庫及地下 (花園)
洋房63號 - 地下, 1-2樓及天台
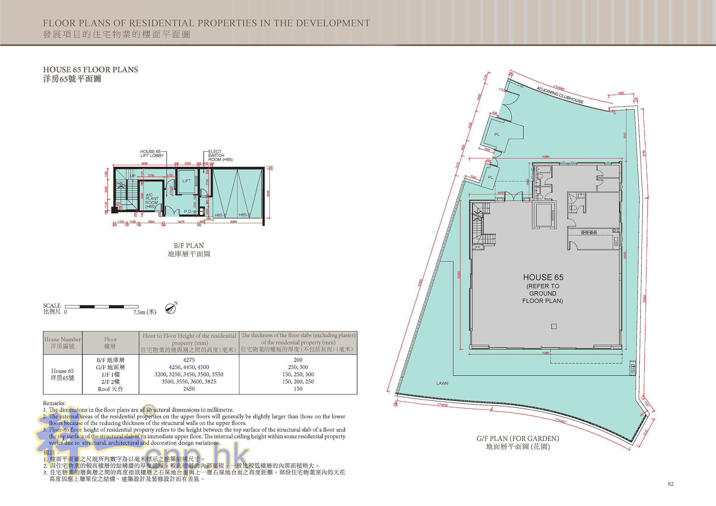
洋房65號 - 地庫及地下 (花園)
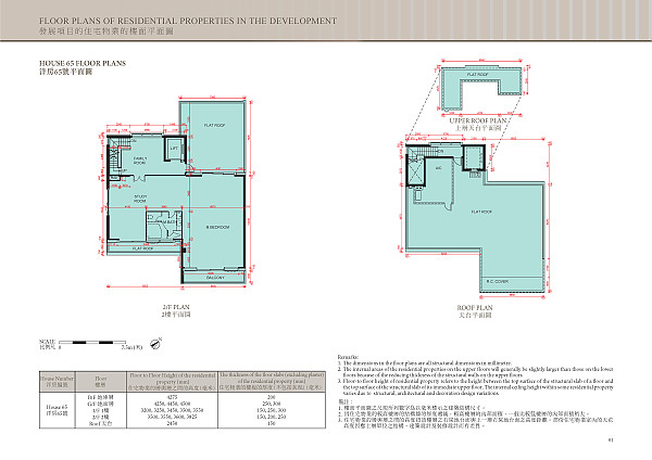
洋房65號 - 地下及1樓
洋房65號 - 2樓及天台
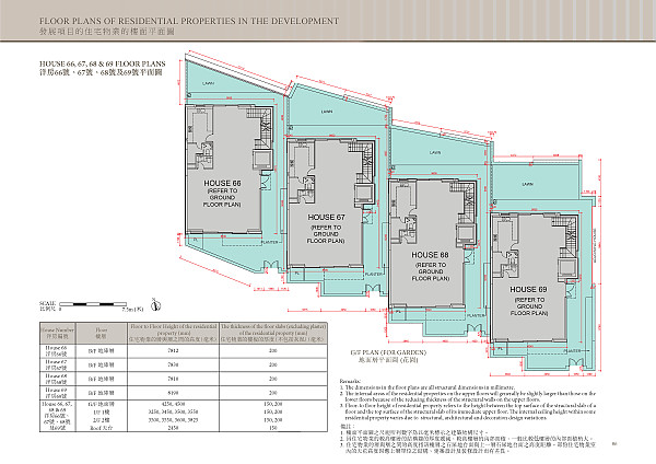
洋房66、67、68及69號 - 地庫
洋房66、67、68及69號 - 地下 (花園)
洋房66、67、68及69號 - 地下
洋房66、67、68及69號 - 1-2樓及天台
洋房70、71及72號 - 地庫
洋房70、71及72號 - 地下 (花園)
洋房70、71及72號 - 地下, 1-2樓及天台
洋房73號 - 地庫及地下 (花園)
洋房73號 - 地下及1樓
洋房73號 - 2樓及天台
返回
主頁
|
豪宅 租/售
|
豪宅成交
|
一手豪宅
|
豪宅市場消息
|
代理登入
|
刊登廣告
|
免費業主放盤
|
業主刪除樓盤
|
按揭計算
相關網站 :
科一物業資訊
|
宅谷地產資訊網
|
香港格價網 $ 樓盤
|
搵樓18
Copyright © 1995 - 2025 香港豪宅網 保留一切權利.
MLS.hk O/B Multiple Listing System Ltd.