免費業主放盤
/
業主刪除樓盤
/
按揭計算
ENG
一手豪宅成交
平面圖
雙寓
地區:
屯門
地址:
湖安街8號
發展商:
怡峰控股.TCS PROJECT MANAGEMENT LTD
(香港興業.HANBRIGHT ASSETS等之附屬公司)
入伙期:
2018
地契年期:
2063 (尚餘38年)
會所設施:
健身室.室外泳池.按摩池.宴會廳等..
周圍環境:
近湖山遊樂場.湖山草地滾球場等...
座/層/單位:
雙寓 北翼 (2-27樓) (A-E室)
雙寓 南翼 (2 -27 樓) (A -H 室)
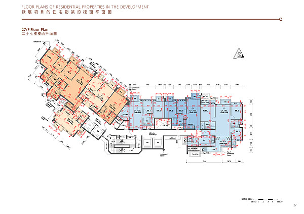
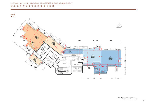
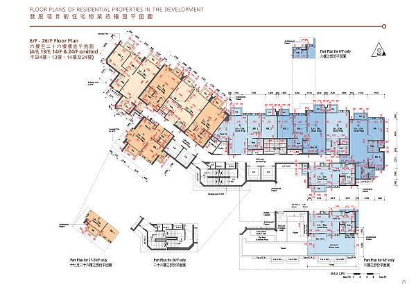
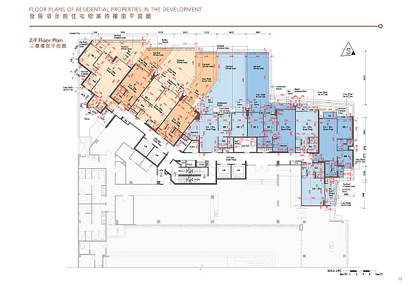
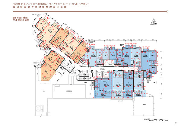
雙寓 北翼 平面圖
2樓
3樓
5樓
6-12樓, 15-23樓, 25-26樓
27樓
天台
返回
主頁
|
豪宅 租/售
|
豪宅成交
|
一手豪宅
|
豪宅市場消息
|
代理登入
|
刊登廣告
|
免費業主放盤
|
業主刪除樓盤
|
按揭計算
相關網站 :
科一物業資訊
|
宅谷地產資訊網
|
香港格價網 $ 樓盤
|
搵樓18
Copyright © 1995 - 2025 香港豪宅網 保留一切權利.
MLS.hk O/B Multiple Listing System Ltd.