免費業主放盤
/
業主刪除樓盤
/
按揭計算
ENG
一手豪宅成交
平面圖
天璽天
地區:
啟德
地址:
協調道10號
發展商:
新鴻基
入伙期:
地契年期:
2068 (尚餘42年)
會所設施:
周圍環境:
AIRSIDE
座/層/單位:
天璽天 第01座 (5-50樓) (A1-B10室)
天璽天 第05座 (5-42樓) (A1-B8室)
天璽天 第02座 (5-50樓) (A1-B8室)
天璽天 第06座 (5-42樓) (A1-B8室)
天璽天 第03座 (5-50樓) (A1-B6室)
天璽天 第02座 平面圖
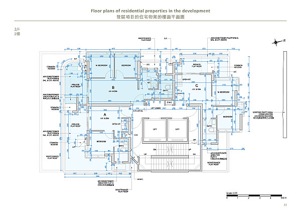
2樓
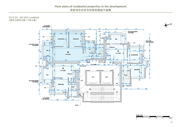
3, 5-8樓
9樓
10-12, 15-21樓
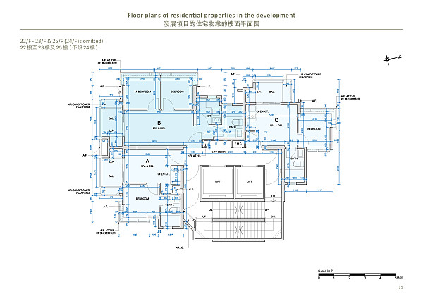
22-23, 25樓
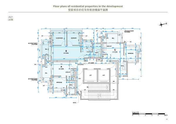
26樓
天台
返回
主頁
|
豪宅 租/售
|
豪宅成交
|
一手豪宅
|
豪宅市場消息
|
代理登入
|
刊登廣告
|
免費業主放盤
|
業主刪除樓盤
|
按揭計算
相關網站 :
科一物業資訊
|
宅谷地產資訊網
|
香港格價網 $ 樓盤
|
搵樓18
Copyright © 1995 - 2026 香港豪宅網 保留一切權利.
MLS.hk O/B Multiple Listing System Ltd.