免費業主放盤
/
業主刪除樓盤
/
按揭計算
ENG
一手豪宅成交
平面圖
林海山城
地區:
大埔
地址:
露輝路36號
發展商:
加鋒有限公司.TCS PROJECT MANAGEMENT LTD
(希慎興業.MARINER BAY等之附屬公司)
入伙期:
2023
地契年期:
2066 (尚餘41年)
會所設施:
室外園林泳池.水療間.品酒廊...
周圍環境:
座/層/單位:
林海山城 ( - 樓) ( - 室)
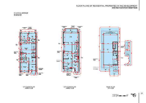
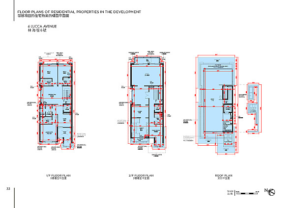
林海山城 第09座 (G-5樓) (A-D室)
林海山城 山城徑 (-樓) (V1-V30室)
林海山城 第10座 (G-5樓) (A-D室)
林海山城 林海徑 (-樓) (LU1-LU11室)
林海山城 第11座 (G-5樓) (A-C室)
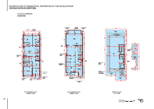
林海山城 第01座 (G-5樓) (A-D室)
林海山城 第12座 (G-5樓) (A-C室)
林海山城 第02座 (G-5樓) (A-D室)
林海山城 第15座 (G-5樓) (A-D室)
林海山城 第03座 (1-5樓) (A-D室)
林海山城 第16座 (G-5樓) (A-D室)
林海山城 第06座 (1-5樓) (A-D室)
林海山城 第17座 (G-5樓) (A-D室)
林海山城 第07座 (G-5樓) (A-D室)
林海山城 第18座 (G-5樓) (A-B室)
林海山城 第08座 (G-5樓) (A-D室)
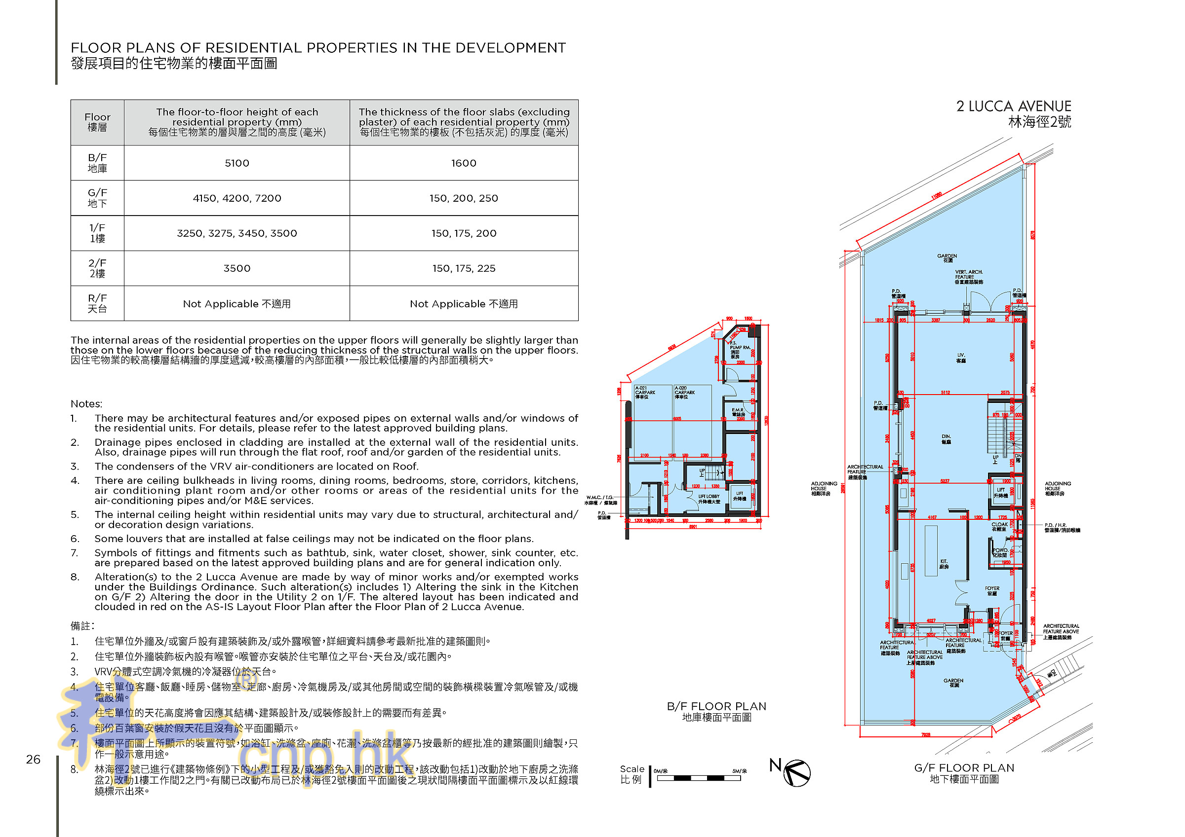
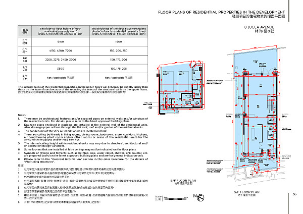
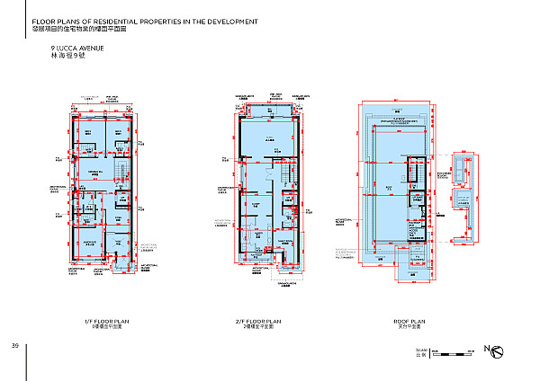
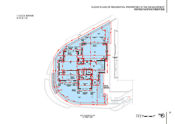
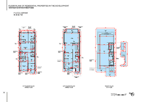
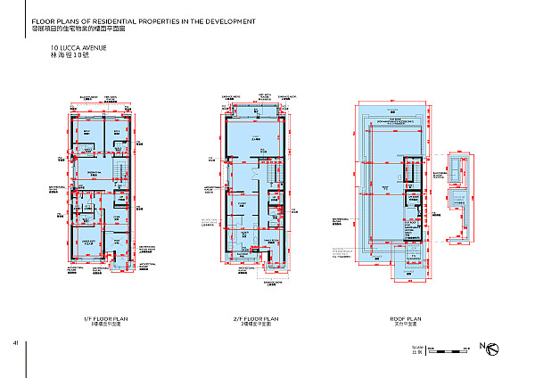
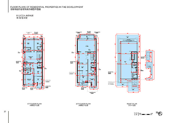
林海山城 林海徑 平面圖
5號 - 地庫及地下
3號 - 1-2樓及天台
3號 - 地庫及地下
2號 - 地下及1樓 (現狀間隔)
2號 - 1-2樓及天台
2號 - 地庫及地下
1號 - 天台 (現狀間隔)
1號 - 1-2樓 (現狀間隔)
1號 - 地下 (現狀間隔)
1號 - 地庫 (現狀間隔)
1號 - 天台
1號 - 1-2樓
1號 - 地下
1號 - 地庫
5號 - 1-2樓及天台
6號 - 地庫及地下
6號 - 1-2樓及天台
7號 - 地庫及地下
7號 - 1-2樓及天台
8號 - 地庫及地下
8號 - 1-2樓及天台
9號 - 地庫及地下
9號 - 1-2樓及天台
10號 - 地庫及地下
10號 - 1-2樓及天台
11號 - 地庫及地下
11號 - 1-2樓及天台
返回
主頁
|
豪宅 租/售
|
豪宅成交
|
一手豪宅
|
豪宅市場消息
|
代理登入
|
刊登廣告
|
免費業主放盤
|
業主刪除樓盤
|
按揭計算
相關網站 :
科一物業資訊
|
宅谷地產資訊網
|
香港格價網 $ 樓盤
|
搵樓18
Copyright © 1995 - 2025 香港豪宅網 保留一切權利.
MLS.hk O/B Multiple Listing System Ltd.